Overview
- Updated On:
- July 11, 2022
- 1 Bedrooms
- 1 Bathrooms
- Year Built: 2022
Property Description
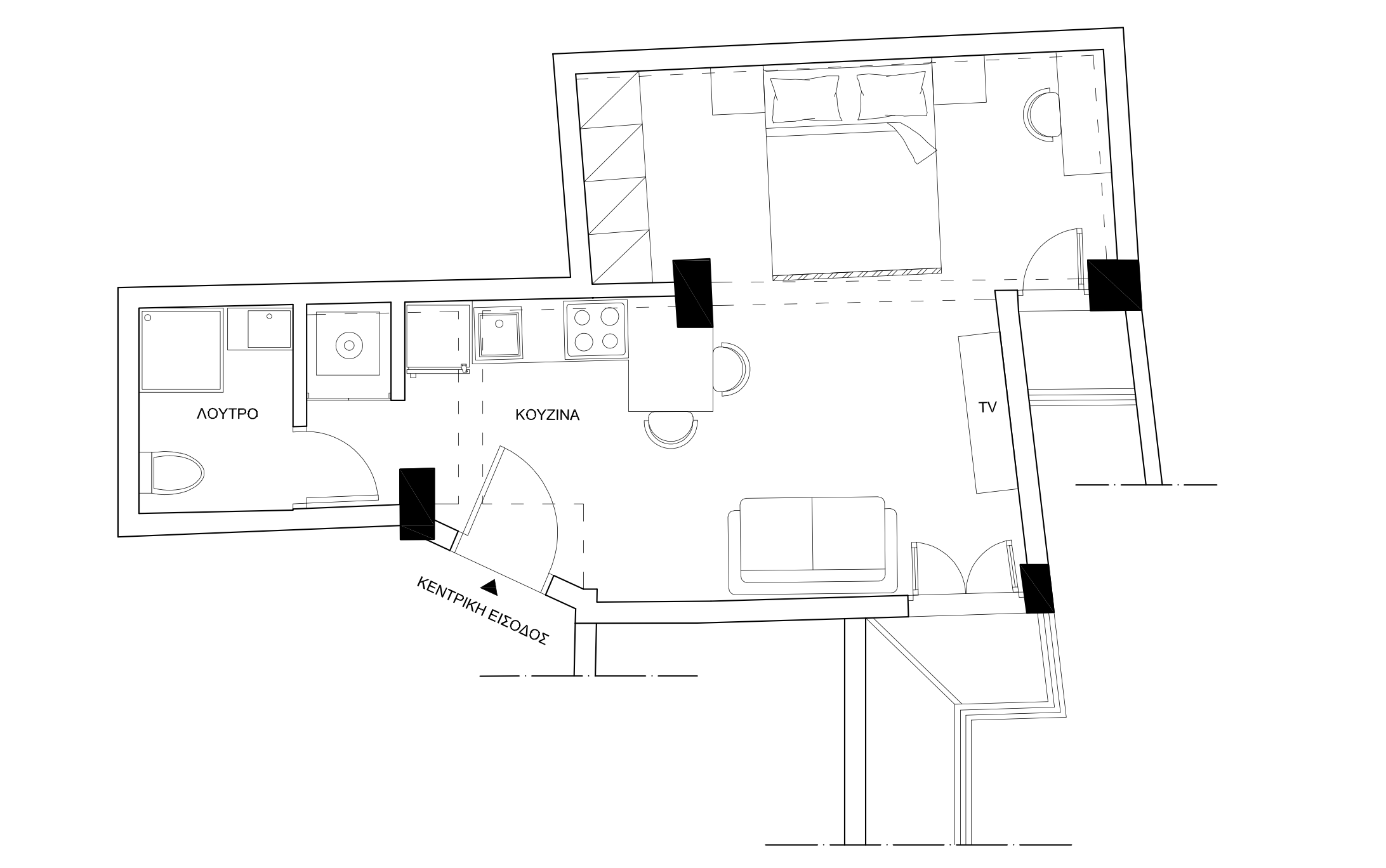
The 40 sq.m. mezzanine floor apartment is located in the center of Thessaloniki in an excellent and central location. It is being renovated to create a luxury apartment. It consists of a living room, kitchen, bedroom and bathroom. It will be fully furnished and equipped, with autonomous natural gas heating and air conditioners in every area. The windows will have energy efficient double glazing.
In 2022, the apartment is completely renovated. New central water and sewer pipes are being installed and proper electrical installation is being carried out.
The apartment is 240 meters from the sea, 2,900 meters from the most central square – landmark of the city, Aristotelous Square, 2100 meters from the Aristotle University of Thessaloniki, 1600 meters from the University of Macedonia and 13.4 km from the International State Airport of Thessaloniki “Macedonia” .







